Dell’acqua 10
Forte dei Marmi
Dell’acqua 10
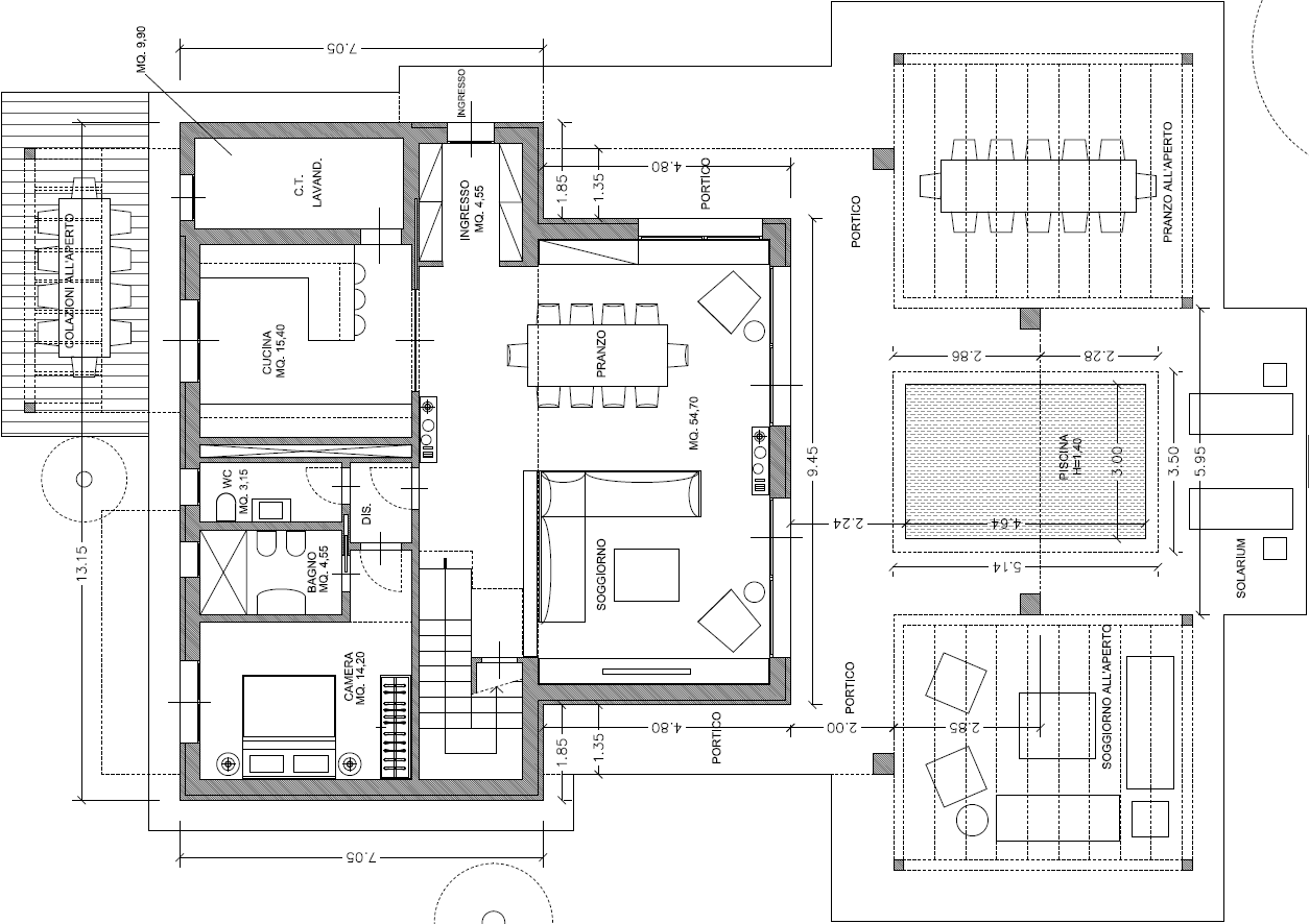
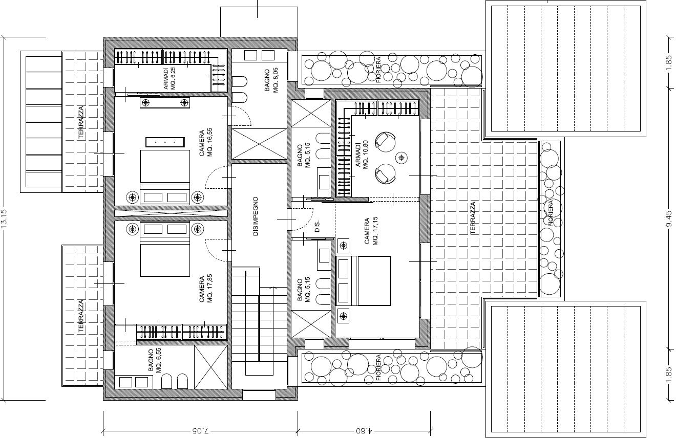
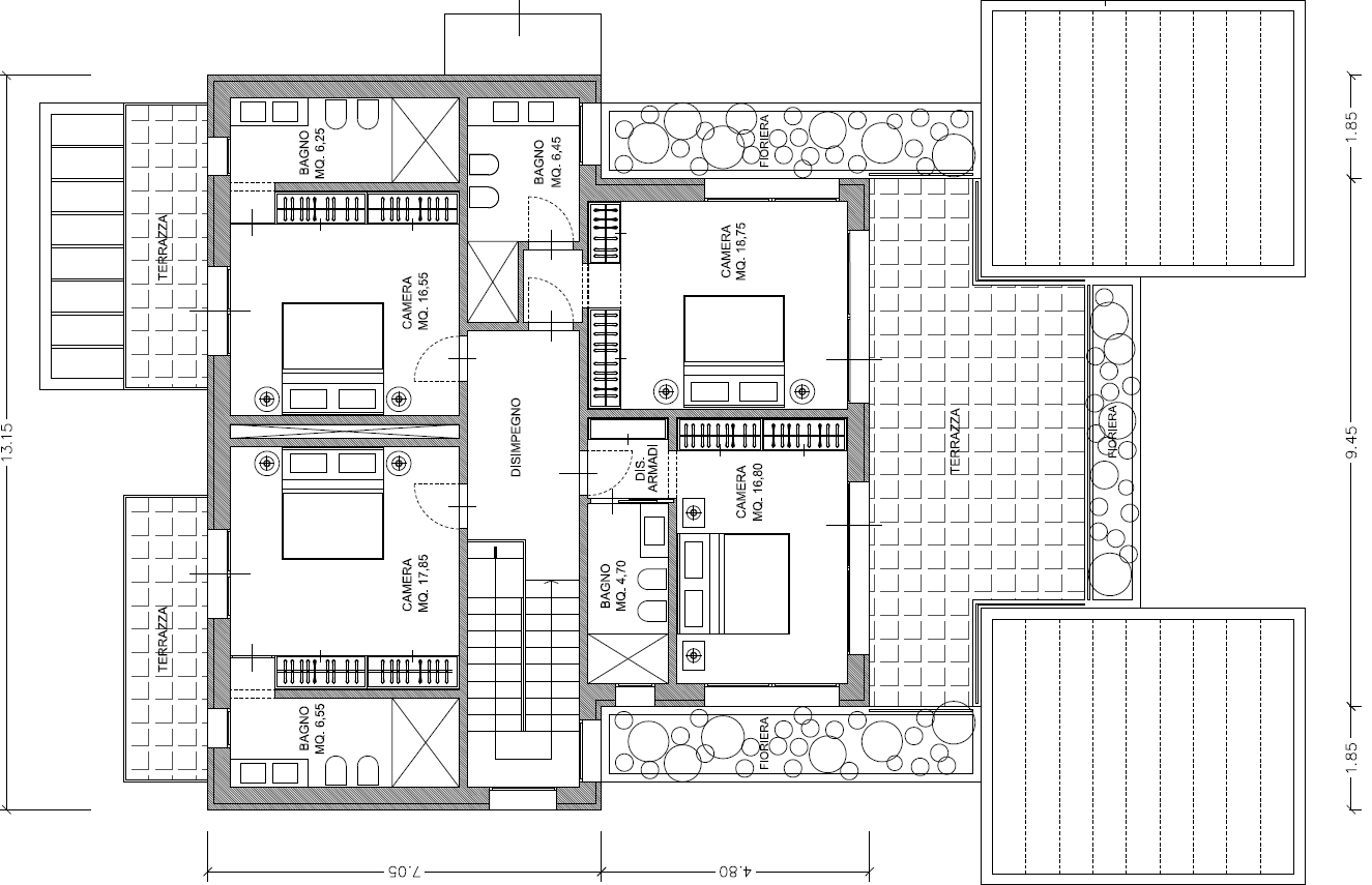
Villa di nuova costruzione di 250 mq su lotto di circa 1000 mq con piscina di 18 mq. A circa 1 km dal mare in posizione super centrale sorgerà una villa moderna dotata di ogni comfort con un giardino riservato, ideale per essere vissuta nella stagione estiva, ma anche negli altri mesi dell’anno. Al piano terra: ingresso, soggiorno/pranzo affacciato sul verde e sulla piscina, cucina abitabile, camera matrimoniale con bagno in suite, bagno ospiti, lavanderia. Al primo piano: 4 camere matrimoniali con bagno in suite, ognuna con terrazza o balcone. Possibilità di master bedroom con cabina armadio e doppio bagno.
Dell’acqua 10
Forte dei Marmi
Dell’acqua 10
In centro a Vittoria Apuana, in zona tranquilla con molta privacy, demolizione e ricostruzione di villa monofamiliare di 180 mq oltre portici e terrazze, su lotto di 760 mq.
Al piano terra soggiorno/pranzo, cucina, camera matrimoniale con bagno, bagno ospiti e lavanderia: lo splendido giardino affacciato sullo storico muro del polverificio di Forte dei Marmi sarà impreziosito da un ampio portico e da una mini piscina, oltre ad un generoso spazio verde.
Al piano primo tre camere matrimoniali con bagno in suite, tutte affacciate su terrazza o balcone










